На главную. Окна

ОкнаИнфо - справочник по пластиковым окнам   
СТАТЬИ - ПРОФИЛИ - КОМПЛЕКТУЮЩИЕ - КОНСТРУКЦИИ - КАТАЛОГ ФИРМ - ВОПРОСЫ И ОТВЕТЫ
   
  

 


 

 

 

Профиль PROPLEX Premium

  
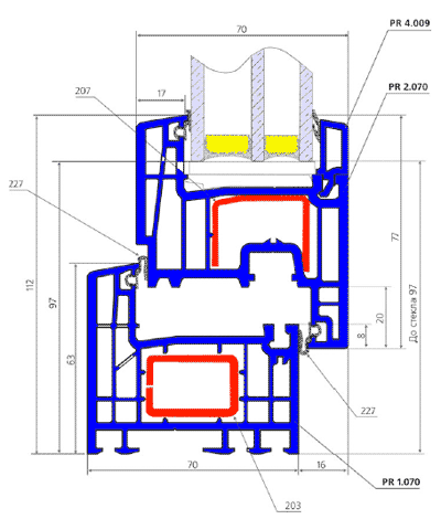
  Профиль PROPLEX-Premium - новый пятикамерный профиль рабочей линейки продукции компании Проплекс.
    Увеличенная ширина 70 мм позволяет профилю успешно конкурировать с зарубежными аналогами. Запас по геометрии дает возможность устанавливать стеклопакеты до 40 мм.

   
PROPLEX-Premium
PR 2.070 Створка
PR 1.070 Коробка
PR 4.014 Штапик
203 Армирующий профиль Ix=1,6 см4
207 Армирующий профиль Ix=1,8 см4
171 Базовая подкладка
227 Прокладка уплотнения

Профили Проплекс:

   Система профилей PROPLEX-OPTIMA

Система PROPLEX-lux 127

  Профили PROPLEX. Размышления о качстве
  Производство PROPLEX. Заслуженный успех