На главную. Окна

ОкнаИнфо - справочник по пластиковым окнам   
СТАТЬИ - ПРОФИЛИ - КОМПЛЕКТУЮЩИЕ - КОНСТРУКЦИИ - КАТАЛОГ ФИРМ - ВОПРОСЫ И ОТВЕТЫ
   
  

 



 

 

Профиль PROPLEX lux

  
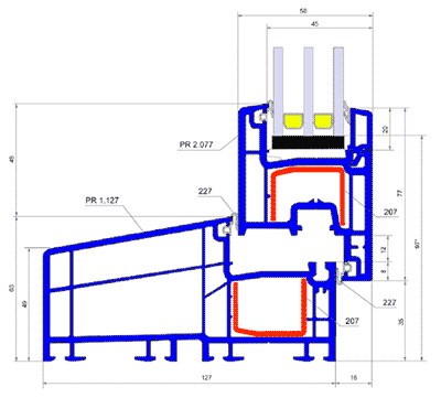
Профиль PROPLEX-lux - увеличение размеров рамы позволяет закрыть оконные откосы, тем самым ликвидируя "мостик холода" - характерную черту типового строительства времен СССР. рабочей линейки продукции компании Проплекс.
    Комплектуется вместе со стандартной створкой PROPLEX-OPTIMA

   
PROPLEX-lux
PR 2.077 Створка
PR 1.127 Коробка
PR 4.014 Штапик
207 Армирующий профиль Ix=1,8 см4
171 Базовая подкладка
227 Прокладка уплотнения

Профили Проплекс:

   Система профилей PROPLEX-OPTIMA

   Система профилей PROPLEX-PREMIUM


  Профили PROPLEX. Размышления о качстве
  Производство PROPLEX. Заслуженный успех